Mise à jour le vendredi 6 juin 2025 par Patricia Díaz Zeas
Read Time: 5 mins

MDPL’s Advocacy Committee will review the following applications on the upcoming Historic Preservation Board agenda. Here is a sneak peek of the projects to be heard and links to learn more. Have a comment about a project you would like to share with our committee? Contact us.
To review the Historic Preservation Board Agenda, including public participation information: Click Here
- 1800 Michigan Avenue
- 1730 Jefferson Avenue.
- 1020 Pennsylvania Avenue.
- 1020 Pennsylvania Avenue.
- 1826 Collins Avenue.
- 7305 Collins Avenue.
OPEN AND CONTINUED ITEMS AND PREVIOUSLY CONTINUED ITEMS
HPB24-0641, 1800 Michigan Avenue.
Current Site

Proposed Structure
Click to view the full City of Miami Beach Staff Report (Will be linked when report available)
An application has been filed requesting a Certificate of Appropriateness for the total demolition of the existing single-family home and the construction of a new single-family home.
HPB24-0632, 1730 Jefferson Avenue.
Current Site
Proposed Structure
Click to view the full City of Miami Beach Staff Report (Will be linked when report available)
An application has been filed requesting a Certificate of Appropriateness for the partial demolition and renovation of the existing home and accessory buildings including the construction of attached additions and variances from the required setbacks, lot coverage, unit size and open space requirements.
HPB25-0647 a.k.a. HPB 7431, 1020 Pennsylvania Avenue.
Current Site
Click to view the full City of Miami Beach Staff Report (Will be linked when report available)
An application has been filed requesting a modification to a previously issued Certificate of Appropriateness for the after-the-fact demolition of the previously existing buildings on the site. Specifically, the applicant is requesting the deletion of Condition C.1. of the final order.
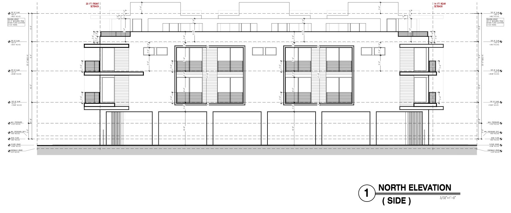
HPB24-0618, 1020 Pennsylvania Avenue.
Current Site
Proposed Structure
Click to view the full City of Miami Beach Staff Report (Will be linked when report available)
An application has been filed requesting a Certificate of Appropriateness for the construction of a multi-family residential building on a vacant lot including one or more waivers.
NEW APPLICATIONS
HPB25-0650, 1826 Collins Avenue.
Current Site
Click to view the full City of Miami Beach Staff Report (Will be linked when report available)
An application has been filed requesting a Certificate of Appropriateness for total demolition of the existing building.
HPB25-0651, 7305 Collins Avenue
Current Site
Proposed Structure
Click to view the full City of Miami Beach Staff Report (Will be linked when report available)
An application has been filed requesting a Certificate of Appropriateness for exterior modifications including but limited to the introduction of a new shade structure, an outdoor bar counter and a mural, and a variance to exceed the hours of operation for an outdoor bar counter.
The post Agenda Preview: June 17, 2025 Historic Preservation Board appeared first on Miami Design Preservation League.









































